Curling B - Idealement situé au coeur du val claret MAE-2984 - Tignes
La France offre une multitude d'options d'hébergement et d'attractions pour tous les goûts et budgets. Séjournez dans des hôtels de luxe à Paris, des gîtes pittoresques en Provence ou des auberges économiques dans les petites villes. Visitez des sites emblématiques comme la Tour Eiffel, le Louvre, les châteaux de la Loire et les plages de la Côte d'Azur. Imprégnez-vous de la culture française à travers ses musées, festivals et sa cuisine réputée.
Curling B - Idealement situé au coeur du val claret MAE-2984
Tignes Val claret
Langues parlées
FR
8.0/10
Langues parlées
FR
8.0/10
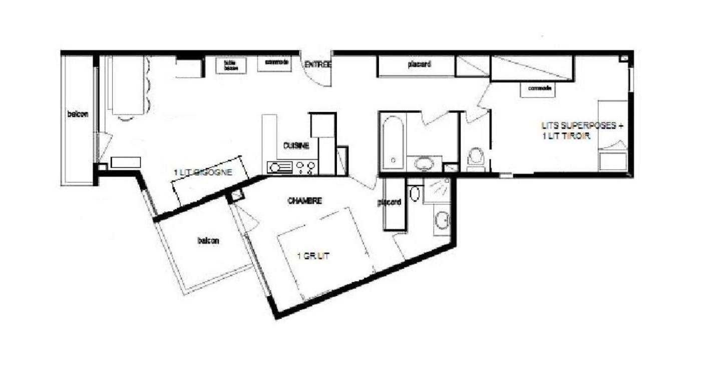
L’hébergement Curling B - Idealement situé au coeur du val claret MAE-2984 vous accueille à Tignes, à respectivement 800 mètres et 1,9 km de ces lieux d’intérêt : Golf du Lac de Tignes et TignesVal dIsère. Il possède un balcon.
Cet appartement compte 2 chambres, un salon comportant une télévision, une cuisine entièrement équipée avec un lave-vaisselle, et 1 salle de bains.
Laéroport le plus proche (Aéroport de Chambéry - Savoie) est à 145 km.
Arrivée à partir de 17:00 et se termine à 10:00.
Vous devrez présenter une pièce didentité avec photo et une carte de crédit lors de lenregistrement. Veuillez noter que toutes les demandes spéciales seront satisfaites sous réserve de disponibilité et pourront entraîner des frais supplémentaires.
Vous devrez effectuer un virement bancaire avant votre arrivée. Létablissement vous contactera après votre réservation pour vous donner plus dinformations.
Appartement. The apartment has 2 bedrooms, 1 bathroom and a kitchen. The apartments kitchen, which features a dishwasher and a microwave, is available for cooking and storing food. This apartment features a TV. The unit has 3 beds.
Établissement entièrement non-fumeurs
