Résidence Le Sierra Nevada - 2 Pièces 45 pers - LE SIERRA NEVADA - 101SN-PLAGNE CENTRE MAE-9014 - Aime La Plagne
La France offre une multitude d'options d'hébergement et d'attractions pour tous les goûts et budgets. Séjournez dans des hôtels de luxe à Paris, des gîtes pittoresques en Provence ou des auberges économiques dans les petites villes. Visitez des sites emblématiques comme la Tour Eiffel, le Louvre, les châteaux de la Loire et les plages de la Côte d'Azur. Imprégnez-vous de la culture française à travers ses musées, festivals et sa cuisine réputée.
Résidence Le Sierra Nevada - 2 Pièces 45 pers - LE SIERRA NEVADA - 101SN-PLAGNE CENTRE MAE-9014
Aime La Plagne Appartement N° 101 - 1er étage, LE SIERRA NEVADA
Langues parlées
FR
9.0/10
Langues parlées
FR
9.0/10
L’hébergement Résidence Le Sierra Nevada - 2 Pièces 45 pers - LE SIERRA NEVADA - 101SN-PLAGNE CENTRE MAE-9014 se trouve à Aime La Plagne.
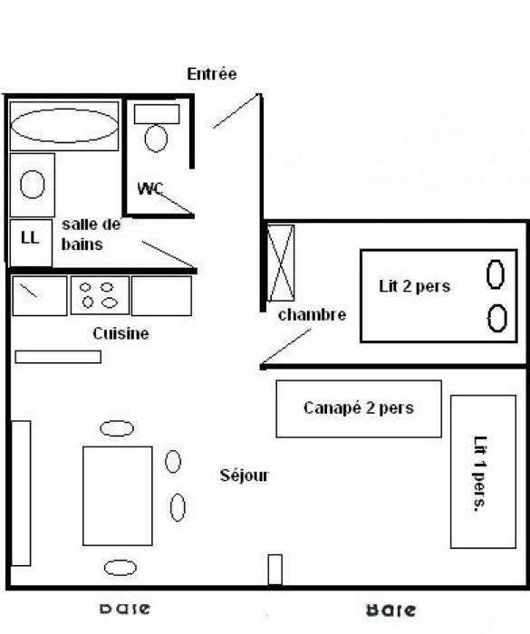
Cet appartement se compose de 1 chambre séparée, dun salon, dune cuisine entièrement équipée avec un réfrigérateur et un lave-vaisselle, ainsi que de 1 salle de bains. Une télévision est disponible.
Laéroport le plus proche (Aéroport de Chambéry - Savoie) est à 119 km.
Arrivée à partir de 17:00 et se termine à 10:00.
Vous devrez présenter une pièce didentité avec photo et une carte de crédit lors de lenregistrement. Veuillez noter que toutes les demandes spéciales seront satisfaites sous réserve de disponibilité et pourront entraîner des frais supplémentaires.
Vous devrez effectuer un virement bancaire avant votre arrivée. Létablissement vous contactera après votre réservation pour vous donner plus dinformations.
Appartement. The apartment has 1 bedroom, 1 bathroom and a kitchen. The fully equipped kitchen features a refrigerator, a dishwasher and an oven. This apartment features a washing machine and a TV. The unit has 3 beds.
Établissement entièrement non-fumeurs
